二建实务之建筑幕墙工程施工技术,含分类及预埋件制作安装

施工建筑幕墙时,规范既是保障安全的关键所在,更是衡量品质的重要界限。哪怕预埋件仅仅相差一厘米,螺栓只是松动一扣,都极有可能致使整面墙宛如高空放置的危险炸弹。今日直接呈现实用要点,将幕墙施工里那些务必要严格把控的硬性标准以及常见的易出问题之处一次性详尽阐释清楚。

预埋件必须扎根稳

作为幕墙与建筑主体连接点的预埋件,平板形和槽形这两种最为常见,在这当中的平板形凭借承载力强以及适应性好,于工地上使用频率处于多数地位。预埋件在主体结构进行浇捣混凝土之际,要依据图纸所示位置以及规格同步嵌入其中,不可能在事后来打孔进行补装。


关键点在于隐蔽工程里预埋件的防腐蚀处理。若采用热镀锌,锌膜厚度得大于40微米,不然薄了几年就会锈穿。连接部位主体结构混凝土强度不可低于C20,否则受力后会开裂,如此整面墙就危险了。
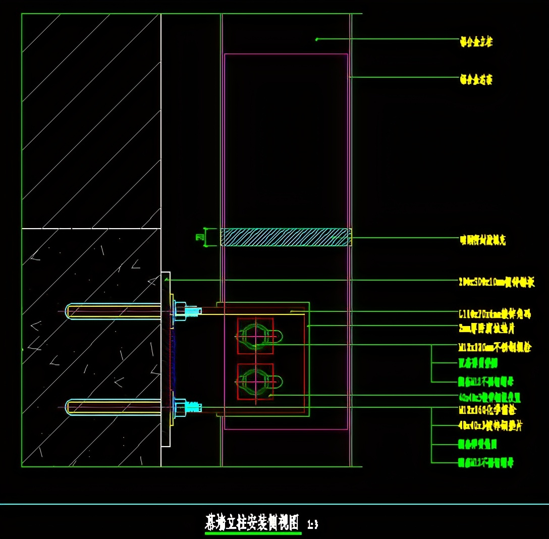
立柱连接要有活动余地
幕墙的骨架是立柱,连接时必须考虑因温度变形以及主体结构沉降所带来的位移,采用螺栓连接之际,防松防滑的措施得做到位,加双螺母以及弹簧垫圈属于常规操作,就算有震动也不用担心会松脱。


明框玻璃幕墙进行安装之际,框槽底部需先行放置橡胶块,其宽度与槽宽保持一致,长度不少于100毫米。玻璃放置进去之后,四周的嵌入量得符合规范要求,左右两边的空隙应尽可能趋于一致,否则玻璃受力不均衡易于发生自爆现象。

全玻幕墙全靠胶缝传力
全玻幕墙的玻璃,其尺寸是比较大的,所以必须借助机械吸盘来进行安装,仅靠手抬的话极易出现破裂情况。在安装的整个过程当中,必须时刻运用水平仪以及垂直尺来开展检测与调整工作,以此确保面板以及肋的平整度能够达到要求,如此一来幕墙才可以始终保持顺直,不会出现歪斜现象。
在面板那里承受着的风压以及地震力,全部经由胶缝传递到玻璃肋上面去。此处所用的胶必定得是硅酮结构密封胶才行,绝对不可以用酸性密封胶来进行替代,不然的话胶缝出现老化开裂这可就是大事故了。对于吊挂式的全玻幕墙而言,在吊夹与主体结构之际除此之外还需要设置刚性水平传力结构,以此来分担重量。
点支承玻璃厚度分情况
采用浮头式连接件的点支承玻璃时,其面板厚度不得小于6毫米,采用沉头式的时候,厚度不得小于8毫米,夹层玻璃以及中空玻璃的单片同样要契合此标准,面板务必使用钢化玻璃或者由钢化合成的夹层、中空玻璃,破碎了才具备安全性。
常规情况下,矩形面板采用四点支承,要是面板尺寸较大且跨度较大,致使挠度无法得到有效控制,那么此时就需要采用六点支承。对于支承钢结构而言,从组装贯穿到焊接再到涂装,全部都必须依据《钢结构工程施工规范》来开展,绝对不可以凭借经验随意行事。
石材幕墙T型挂件慎用
石材面板跟骨架相连存在短槽式、背栓式、背挂式 ,短槽式进行安装得从第一层起始 ,在槽内注入胶水以确保石板以及挂件咬合得稳固 ,石材幕墙选用能独立拆卸的固定系统为佳 ,便于后期开展更换维修。
近年短槽式T型挂件被较多使用,然而却不被建议当作支承固定系统,这是由于其受力情况不合理。板缝填充需要契合设计要求,鉴于石材存在孔隙,所以密封胶必须采用经过耐污染性试验且合格的石材专用胶,以此来防止胶油渗透进入石板进而导致变色。
防火防雷封堵一个不能少
幕墙跟各层楼板之间的缝隙,以及幕墙与隔墙之间的缝隙,都得使用不燃材料去封堵,岩棉或者矿棉的厚度不可以小于100毫米,以此形成防火烟带。承托板和主体之间跟幕墙之间的缝隙,需要用防火密封胶封严实。没有窗槛墙的情况下,每层楼板的外沿要设置耐火极限不低于1小时、高度不低于0.8米的不燃烧实体裙墙。
金属框架需与主体防雷体系进行可靠连接,连接的部位要将非导电保护层清除掉。铝合金立柱在范围不大于10米的情况下,要有一根借助柔性导线把上下柱连通起来。存在水平均压环的楼层,预埋件要用圆钢或者扁钢焊通,以此形成完整的防雷通路。
再来设问一回:你于工地所使用的预埋件,上次进行抽检时镀锌的厚度是否合格了呢?欢迎在评论区晾晒此数据,点赞并分享出去,好使更多人能够避开这些存在的坑。
声明:本站所有内容均由网友自主上传发布,内容的真实性、合法性及版权归属均由上传网友负责,本站仅提供信息展示与传播平台。如若本站内容侵犯了原著者的合法权益,可联系本站删除。 。




