外墙保温工程:施工前材料筹备要完备,性能指标严控,检测试验不可少
施工之前,针对外墙保温作材料准备的工作,对于工程质量有保障与否起着直接决定作用,对于工程进度有保障与否同样起着直接决定作用。
材料准备的重要性
进行外墙保温施工时,需要诸多材料共同开展作业,要是其中任何一项材料出现缺失或者不符合标准的情况,那么都会造成工程停顿,停止进行下去。施工单位得预先核查保温板、粘结砂浆、抹面胶浆之类的主要材料的库存状况,况且还要确认这些材料的生产日期及保质期。
材料的规格,一定要契合设计所提出的要求,像聚苯板的密度、防火等级这类参数。于实际采购流程当中,施工方要领出样本进行送交检测这个动作,以此保障材料性能能够抵达国家标准范畴,防止因为质量方面出现问题而导致返工这种情况发生。
材料标准的符合性
需要提供出厂合格证还有检测报告的是所有进场材料,其中重点涵盖导热系数、抗压强度等指标。耐碱网格布于贴面砖系统里单位面积质量不可以低于160克,这属于防止开裂的关键所在。

泡沫混凝土的干密度,以及抗压强度,同样需要严格进行把关。施工单位应当建立起材料验收台账,针对不合格的材料要坚决予以退场,如此从源头去杜绝隐患。
材料供应计划
项目部需要对应着施工进度来编制详尽细致的材料进场计划。 要清晰明确每一种材料的用量以及到场的时间。 鉴于运输以及天气等存在不确定性的因素。 建议预留大概10%左右的缓冲库存。
对于那些依赖外部供应商所提供的材料而言,需要预先签订采购合同,并且还要约定违约条款。要按照一定周期去检查 商家的生产状况,防止因为供应链方面出现的问题而对工期造成影响。
基层处理与准备
建筑施工开始之前,要将基层墙面彻彻底底地进行清理,去除那些灰尘,还要去除油污以及松动颗粒。水泥砂浆找平层一定得是平整的,不存在空鼓现象,平整度方面的误差应当控制在毫米数为四以内。
依据建筑立面弹出用于保温板粘贴提供准确参考的控制线以及基准线,与此同时准备专门用于切割、搅拌、粘贴等确保施工流程不至于受阻的专用工具 。
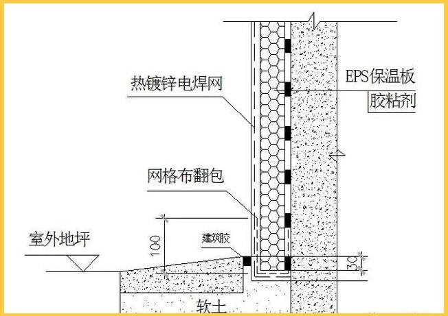
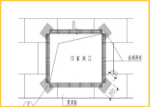
特殊部位施工方法

需采用加强网格布以及附加锚栓来进行加固的部位有阴阳角、窗口等,防火隔离带要依据图纸要求满粘,其宽度不少于300毫米,并且接缝处要做密封处理 。
经裁剪之后的热镀锌电焊网,得以锚栓予以固定,其间距不可超过500毫米之数目。檐口以及勒脚等那些容易遭受冲击方面的部位,应当增添护层之厚度。
质量监控与验收
各道工序结束之后,要开展自我检查以及专门检查,着重查看粘贴的面积,还有接缝相关处理以及锚固的数目。在施工的阶段,每一天都得将温湿度状况给记录下来,防止在下雨的天气或者温度处于5℃以下的环境里展开施工。

于最终验收之际,要对节能设计专篇涵盖的所有要求加以核查,这里面包含热工性能现场检测报告。一旦察觉到存在不合格的要点,那就必须限定好期限去进行整改,以此来保证系统的整体性能能够实现达标。
请问您于施工时碰到过哪些材料方面的问题,又是怎样去解决的呢,欢迎来分享相关经验呀!

声明:本站所有内容均由网友自主上传发布,内容的真实性、合法性及版权归属均由上传网友负责,本站仅提供信息展示与传播平台。如若本站内容侵犯了原著者的合法权益,可联系本站删除。 。




