钢筋加工全知道:分类、检验保管及加工过程详细介绍
首先,钢筋配送的核心并非只是单纯进行送货,而是要准确地进行计算以及加工,目的呢,在于保证每一根钢筋于施工现场都能够严丝合缝。其次,这项工作直接关联到建筑结构的质量以及安全,任何一个数字要是出现失误,都极有可能引发严重后果。
理解图纸与规范要求

吃透设计图纸,是钢筋配送的首要任务。梁、板、柱等构件内各种钢筋的规格、形状以及位置,在施工图之中可被详细标明。配送人员需结合国家以及行业规范进行,准确理解设计意图。

不单是图纸,还得要熟悉那些如《混凝土结构工程施工规范》这般文件里,针对保护层厚度、锚固长度以及搭接位置的具体规定才行。这些规范可是计算的依据,绝对不能被忽视掉。比如说呢,梁当中受力钢筋的保护层一般情况下要求是不小于20毫米的。
精确计算下料长度

不能够直接采用图纸标注的尺寸来进行计算下料长度。针对于两端带有弯钩的光圆钢筋而言,在设计长度的基础之上是要加上弯钩所增加的长度的。弯钩的平直段长度存在着明确的要求,这种要求必须要按照规定去进行计算。
与此同时,当钢筋处于弯曲状态时,会出现塑性变形的情况,进而致使其长度有略微的增加,而此种增加的长度就被命名为弯曲伸长值。此弯曲伸长值会受到钢筋所采用的材质、本身具备的直径以及所弯曲的角度等因素的影响,所以需要参照以往积累的经验数据,还得凭借实际进行试弯的方式来加以校核,以此来保证下料能够达到精准无误的程度。

配料与接头考量
在进行配料操作时,需要全面地、统筹地去斟酌整层或者整个构件所具备的需求,进而统计得出每一种规格的钢筋所拥有的总根数以及总长度,籍此来对原材料的切割予以优化,使其减少废料。这乃是控制成本的关键所在环节。

务必得预先筹划钢筋的连接办法,在运用绑扎接头之际,要于计算之中额外添加给定的搭接长度,且在配料单里清晰注明接头位置,如果采用焊接,一般来讲是先焊接长钢筋然后依据需求进行下料 。
不同钢筋类型的处理
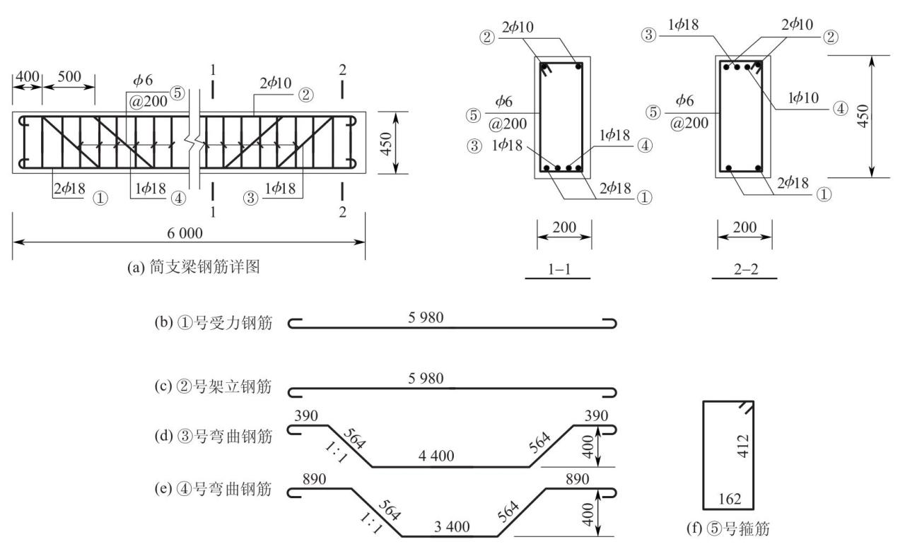
工程里常见的钢筋种类有直钢筋、弯起钢筋以及箍筋,直钢筋的计算相对来讲较为简单,主要是进行长度调整,弯起钢筋却要计算水平段、斜段还有垂直段的精准尺寸,斜长能依据三角函数或者进行查表来予以确定。
箍筋展开的计算,得特别留意弯钩呈现的形式,用于抗震结构范畴的箍筋,其末端必须做出135度的弯钩,它的弯钩增加的长度,相较于普通的90度或者180度弯钩而言,要更长一些,而这个,在相关规定的表格当中,是有具体数值的。
加工允许偏差与连接技术

钢筋进行加工时,是允许存在着微小偏差的,然而却必须要将其控制在标准范围之内。比如说,受力钢筋顺着长度方向全长的净尺寸所允许出现的偏差是±10毫米,箍筋内净尺寸所允许出现的偏差是±5毫米。而这些标准乃是成为验收的底线的。

不断发展着的是钢筋连接技术,除传统绑扎搭接以及电弧焊之外,现已被广泛应用的是等强直螺纹连接技术,其在工厂预制螺纹,于现场借助套筒予以连接,具备强度高、速度快以及质量稳定的特点,特别适用于大直径钢筋。
钢筋代换的严肃原则

施工现场若钢筋规格不全,便有可能要进行钢筋代换,这得依照等强度代换原则来做,也就意味着代换之后钢筋的总承载能力不可低于原设计,一般来讲要计算并对钢筋的根数或者直径予以调整。
代换可不是单纯的简单替换,它还得要满足全部的构造要求才行。代换之后的钢筋间距,还有锚固长度,以及最小直径等这些方面,都得重新去进行复核,以此来保证符合规范,并且还需要得到设计单位的书面同意,绝对禁止擅自去进行更改。
在您实际进行工作期间,所碰到的最为棘手的有关钢筋下料计算的问题究竟是属于哪种情形呢?热情欢迎于评论区域分享您具备的经验,要是感觉这篇文章对您有一定帮助的话,那就请点赞予以支持并且转发给有需要的同事 。

声明:本站所有内容均由网友自主上传发布,内容的真实性、合法性及版权归属均由上传网友负责,本站仅提供信息展示与传播平台。如若本站内容侵犯了原著者的合法权益,可联系本站删除。 。




