钢筋加工与绑扎前,这些材料和机具你得备好
在建的建筑场地之中,钢筋工程的质量状况直接对整栋楼的安全与否起到决定性作用。许多人觉得绑扎钢筋仅仅是将铁条简单地捆绑在一起,然而却不知道在此背后隐匿着一整套严谨且严格的施工流程以及验收标准。
施工准备阶段的关键细节
交底工作绝非是走过场,施工之前,技术负责人需对照图纸逐个讲解每根柱子以及梁的钢筋规格,还有间距要求,以及连接方式,2026年各地住建部门对于交底记录的要求更为严格了,必须留存影像资料以及签字确认,班组长要将这些要点转化成工人能够听懂的操作指令,诸如“这个位置箍筋要加密至100毫米”,唯有每个人都明晰自己该做什么,后续才不会出现返工。

准备材料时,要精确到每一根钢筋,工地得备齐一级钢φ6至φ12, 二级螺纹钢Φ12至Φ22, 以及三级螺纹钢25、28、32、36这些常用规格。绑扎用的20到22号火烧丝必须韧性良好,拧三圈而不断。塑料卡用于控制保护层厚度,梁底和柱角的位置最易漏放。塔吊负责吊装,钢筋钩子、扳手、钢卷尺这些工具每个班组都要配备齐全,缺了哪样都会耽误进度。
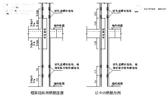
框架柱钢筋的具体绑扎方法
绑扎柱子钢筋前,得先核对配料单。操作工人应对料牌上的规格与实际钢筋逐一对照,Φ18和Φ20看似相近,经卡尺测量就能分辨出差异。直螺纹连接处需拧紧到位,外露丝扣不可超两圈。绑扎之时,十字交叉点务必全扎牢固,跳绑或漏绑在验收时极易被察觉。检查柱子钢筋垂直度要用吊线锤,偏差超5毫米就得进行调整。
按照严格顺序进行施工流程,将箍筋套在经下一层伸出的连接筋之上,连接竖向受力筋,此期间吊线锤不可离手,于离地面往上50毫米之处起划第一道加密箍筋线,其间距依据图纸所标注的执行,绑扎时正反扣交替运用,转角的地方必须扎牢固,弯钩叠合的地方要沿着柱子竖筋交错进行布置,不可全部堆积在同一个方向,不然受力会不均衡。

墙体钢筋的工艺流程和常见问题

处于墙体钢筋施工阶段,其起始于放线环节,当于顶板混凝土之上弹出位置线之后,需逐个对钢筋间距予以检查,一旦发现存在位移情况,若偏差处于30毫米以内,则以1比6坡度缓步进行校正,要是超过30毫米,便要增添弯拐钢筋,此拐头长度为15厘米,且上部伸出结构面达1米,然而此步骤被诸多人员因贪图省事而予以跳过,最终致使后期模板无法合上。

工艺流程的每一步程序都绝对不能混乱错乱。首先要对竖向钢筋的位移状况进行调整,随后绑扎暗柱的钢筋,紧接着要来处理连梁以及暗梁,之后放置竖向梯子筋以此来控制间距,最后才开展水平筋与拉钩的绑扎工作。拉钩需要同时钩牢竖向筋与水平筋,而且弯钩的角度应当是135度。在全部绑扎完成之后还必须进行一次整体的调整,以此确保钢筋网片能够横平竖直,如此才能够向监理部门申报有关隐蔽验收的事项。
验收时的质量标准和检查要点

验收钢筋要看三样东西,其一,其表面务必保持洁净,绝不能存有泥土、油污亦或是浮锈,若锈蚀程度较为严重,则需进行除锈处理或者作降级使用;其二,其规格尺寸一定要精准无误,间距、排距以及锚固长度哪怕相差一厘米都是不允许的;其三,焊接接头需依照批次送去检验,以300个接头作为一批次,只有力学性能检验合格后才能够继续开展施工。2025年新出台的国标对于检测频率提出了更高的要求,一旦出现漏检情况则直接停工并进行整改。
质量标准存在硬性数字,箍筋间距的允许偏差为正负10毫米,梁柱的保护层厚度允许正负5毫米,绑扎时缺扣松扣的数量不得超过应绑扣数的百分之十,并且不能集中出现在同一个受力截面,这些数据并非只是写在纸上好看而已,质监站抽查之际拿卷尺一拉,若不合格就得返工,严重的情形还要扣信用分。
成品保护和现场安全环保措施

成品保护常常是极易被忽略掉的环节。钢筋绑扎完成之后,水电工、木工、架子工都会上去开展工作,踩踏钢筋、掰弯钢筋、切割钢筋这类事情时常出现。若要在主筋之上施行焊接操作是务必要经过同意的,而且要采取铺垫铁板进行保护的举措。当电线管与钢筋产生冲突之际,能够适度弯折钢筋使其避开,不过保护层厚度是不能受到影响的,绝对不允许使用气割枪直接将钢筋切断。
安全不能放松,环保同样不能放松,钢筋加工棚需搭设防护棚,切断机旁边要有操作规程,弯曲机旁边也要有操作规程,废料头每天都要清理,清理后分类堆放以便回收,2026年诸多城市对工地扬尘抓得特别严,对工地噪音抓得也特别紧,晚上十点以后切割钢筋会被投诉,工人进场必须佩戴安全帽,绑扎高处墙体时要系好安全带,这些都是保命的规矩。

瞧完这篇针对钢筋工程整个流程的剖析,你于工地上碰到过哪些鉴于钢筋施工不合规范进而引发的质量方面的问题呢?欢迎于评论区域分享你的过往经历,要是觉着有价值那就点个赞并转发给有需求的同行哟。
声明:除非特别标注,否则均为本站原创文章,转载时请以链接形式注明文章出处。如若本站内容侵犯了原著者的合法权益,可联系本站删除。



