人防工程掩蔽验收检查内容,含底板隐蔽工程要点及实例分析
人防工程掩蔽验收乃是整个施工进程里最具关键意义的环节,一旦钢筋完成绑扎而后混凝土进行浇筑下来,要是再察觉到问题那就只能对墙体和楼板进行砸敲,所付出的代价非常巨大。本文将多个实际验收案例予以结合,把人防工程底板、侧墙、顶板这三个阶段极易踩到的坑以及必须严格盯紧的细节一次性讲述明白。

底板施工阶段的隐蔽验收要点

施工底板之际,极易被忽视的乃是人防门框以及地漏的预埋精确程度。于某一项目的主楼消防前室范围之内,鉴于建筑地坪出现抬高的状况,致使集水坑底部的标高高于排水地漏的出口,进而形成倒流现象,到了后期只能将其砸掉并重新进行制作。集水坑的钢筋绑扎工作也常常会出现差错,坑底底板厚度不够的情形时有出现,在验收的时候必须借助尺子逐个去复核坑底的标高以及钢筋的间距。

当处于底板阶段时,地漏预埋属于另一个重灾区,很多工程项目,在建筑面层仅有50毫米厚的时候,未能将地漏与底板同步实施浇筑,而是预留孔洞之后再浇,最终致使地漏成品标高远远高于建筑物完成面,流水进来全部根本就彻底丝毫流不进去,当前存在覆土层的状况下还要特别着重留意关注地漏预埋高度,要是埋深了排水就会不顺畅流畅,要是将其埋浅了,则又会影响到包覆土掩埋时的施工进展。


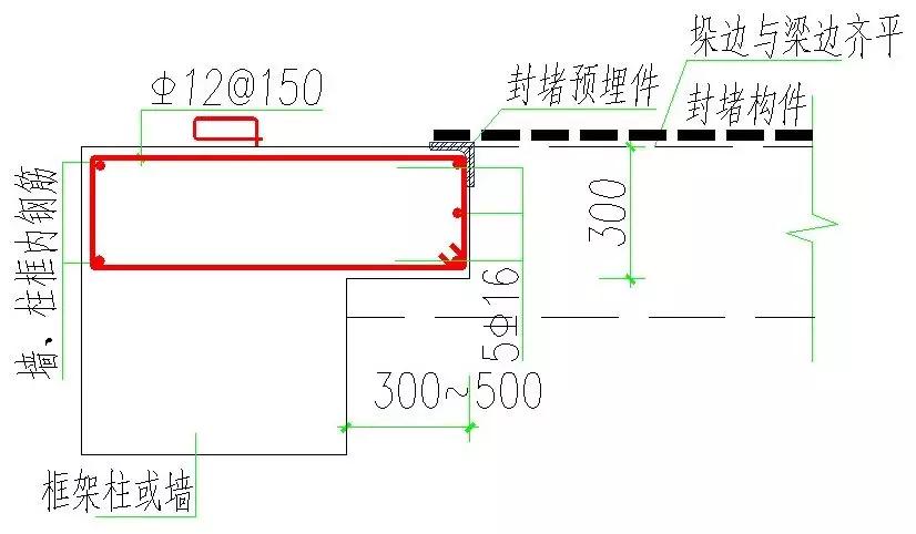
后浇带与加强带的设置规则


后浇带作为用于防止因混凝土收缩不均而致使产生有害裂缝所预留的临时施工缝,然而人防地下室对此有着严格的限制。后浇带虽能够进行设置,可是绝对不可以穿越人防专用房间,像是防毒通道、密闭通道、滤毒室这一类核心区域。有一处工地将后浇带设置在了防毒通道的位置上,故而被相关方面勒令进行停工改正。


高强度等级膨胀混凝土于收缩应力最大之处展开连续浇筑的技术便是加强带。当地下室长度远超常规时存在两种选择,其一可设置后浇带,其二可设置膨胀加强带。然而不管选用哪一种方式,都得确保封堵两侧墙垛的定位跟上部梁边以及下部沟槽边呈平齐状态,以此保证封堵框处于同一个平面内,不然门框将无法完成安装。
人防墙体的钢筋与门框预埋


人防墙体部位的钢筋配筋具备着相当严格的方向性,这就一定要清晰地分辨出防护区域以及非防护区域,众多的施工队伍却把内侧与外侧弄颠倒了,进而致使活门槛暗梁的钢筋方向出现错误,竖向钢筋接头的百分率不符合要求,接头设置在主要受力区域同样是较为常见的问题,在此建议竖向钢筋最好是不要设置接头,要一次性通长布置到位。
人防门框以及封堵框,原则上而言,要在进行浇筑底板的时候,整体予以预埋以至于达到应有的位置。要是建筑面层相对较大,那么封堵框能够放置在墙体阶段来进行安装呢。然而门洞四周的尺寸以及标高,必须要与人防安装厂家一同进行复核,只有复核之后没有错误了,才可以开展浇筑混凝土的操作。在施工过程当中,还要进一步采取一定的措施来促使钢筋不会出现移位的情况,不然一旦门框出现歪斜,传力路径也就随之而断了。


拉结筋与管线预埋的硬性要求

甲类人防地下室的底板,要设置拉结筋,顶板也要设置拉结筋,人防墙体同样必须设置拉结筋,乙类的话,能够少一个底板不设置拉结筋。拉结筋尽管体积小,然而作用却很大 ,在不少项目里,存在漏设拉结筋的情况,或者是拉结筋的间距过大,在验收的时候,会被判定为重大缺陷。当民用院的剪力墙与人防墙体重合的时候,钢筋处理常常会出现错误 ,此时必须对照人防图纸,逐一核对钢筋的直径,还要核对钢筋的间距。
更是存在着管线预埋方面形形色色的问题,风管穿越人防墙时,需要预埋封堵框,其大小、位置以及标高都得依据图纸来施工,气密测量管、放射性监测取样管还有压差测量管这些专业预埋管,常常出现漏埋或者埋错位置的状况,强电要求一根电缆对应一根钢管,弱电散线预埋管的管径不能超过DN25,桥架绝对严禁直接穿越人防墙。

穿墙套管与模板安装的工艺细节

当水管穿越人防墙时,是一定要设置刚性防水套管的,要是管径大于或者等于200毫米,那么还得增加防护挡板,套管之间设定的间距得足夠大,不然到了后期闸阀就无法安装上去,洞口周边的钢筋必须要进行封锚并且予以加强,对于模板对拉螺栓来说,绝对禁止使用塑料套管或者穿墙拉杆,因为拆模之后留下的孔洞会对密闭效果造成破坏,有一个工地就是因为使用了塑料套管而被要求全部返工。


人防区内的顶板,不允许设置变形缝,此为必定要遵循的规定。梁板作为承重结构,其配筋图由专门的人防院负责设计,然而,模板关系图却需由民用院来出具,这两套图纸在实际应用时,均须紧密联合使用。墙体内部的竖向钢筋,必须沿着垂直方向一直延伸至顶板的顶面位置,之后再进行弯锚操作,以此保证直锚的长度符合设计要求。楼梯水平封堵所需的封堵板垛,应当围绕楼梯的四周开展设置排列,要是无法这样做,那么封堵梁将缺乏可靠的着力点。
顶板施工与成品保护的注意事项
顶板预留的套管,得留出足够用于安装的空间,人防防爆波地漏,必须采用不锈钢或者铸铁的材质,其标高要比地面建筑完成面低五到十毫米。不是防护区的管道,严禁往上穿越顶板,唯有防爆波地漏、消防管道以及与人防相关的给排水管道,才是被允许的。混凝土泵送车,绝对禁止在新浇筑好的顶板上面开行,不然其早期裂缝就没办法修复了。
进行顶板施工洞作业时,需按照施工缝处的要求妥善处理好防水事宜。要是发现墙体钢筋向顶板延伸的长度未达标准,那就必定得加插呈倒U形的钢筋来实施补强操作呀。存在这样的项目,即便依照图纸加设了护壁柱,然而梁支座负筋却并未随之进行调整,进而致使锚固出现失效状况,像这种隐蔽性的问题是极其容易被忽视忘掉嘅。等到验收阶段,要手持手电筒一寸一寸地去仔细查看,把每一根钢筋、每一个套管都认认真真看明白瞧清楚哟。
你在人防工程验收期间还碰到过哪些未曾预料到的问题,欢迎于评论区分享你的经历,点赞并转发以便让更多同行能够看到这些实用的内容。
声明:本站所有内容均由网友自主上传发布,内容的真实性、合法性及版权归属均由上传网友负责,本站仅提供信息展示与传播平台。如若本站内容侵犯了原著者的合法权益,可联系本站删除。 。




